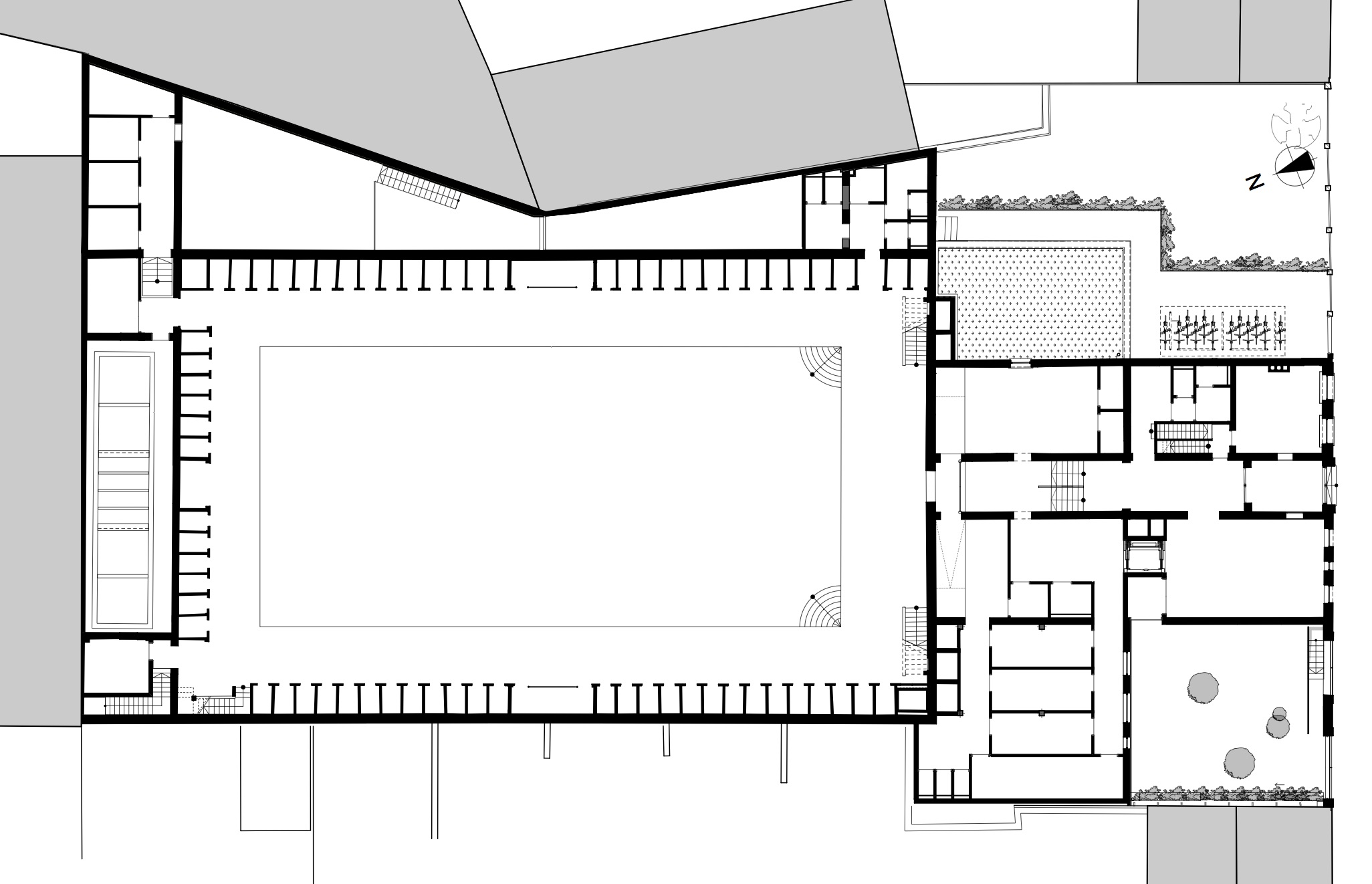
La piscine d'Ixelles est la plus ancienne piscine qui subsiste en Région de Bruxelles-Capitale et l'une des plus anciennes de Belgique. Construit en 1904 par les architectes Alexandre Cooreman et Jules Rau, cet édifice de grande valeur patrimoniale est intact à l'exception de la charpente qui a été modifiée en 1940. L'ensemble du bâtiment est classé depuis 2007. L'accès principal depuis la rue de la Natation, le bassin et les cabines sont restaurées dans leur état d’origine. La cuve en béton Hennebique est conservée comme exemple historique des premiers bétons armés. La construction de l’extension permet aussi d’organiser une nouvelle entrée et un hall d'accueil pour les personnes à mobilité réduite. Enfin, l’ensemble du bâtiment est repensé pour assurer la séparation claire des pieds nus et pieds chaussés conformément aux normes d’hygiène actuelles dans les piscines. Par ailleurs, des mesures en vue d'économiser l'énergie sont prévues (cogénération, ventilation performante).






