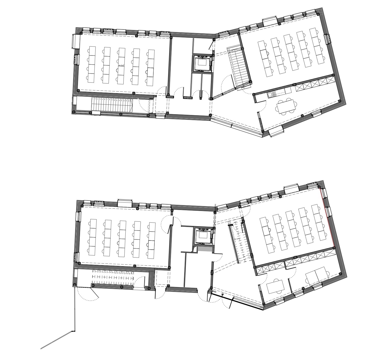
La principale préoccupation dans la conception est l'enfant. La nouvelle construction est un espace favorable au développement de l'enfant dans son activité. Elle doit également permettre un lien de qualité entre l'enfant et l'adulte. La configuration de l'architecture est simple et claire pour permettre à l’enfant de se sentir protégé. Les classes disposées aux extrémités du bâtiment sont orientées de sorte à profiter de la lumière indirecte du nord. La zone de recul arborée tempère l’agitation du Boulevard, et la vue tamisée entre les arbres crée un lien entre les enfants et l’espace public. Les classes se superposent en cohérence des fonctions et des zones. Les circulations ne sont pas purement fonctionnelles; Ces espaces généreux sont appropriables par les enfants. Les couloirs sont quasi inexistants pour laisser place à des espaces de circulation larges, polyvalents, des zones de respirations partagés entre les classes.










